Urbino | Residenziale | Casolari | Vendita | 125.000€
In prossimità della località di Trasanni di Urbino (PU), posto su belvedere immerso nel verde, vendesi casolare, da ristrutturare, di totali circa 340 mq disposto su 2 piani circondato da una corte pertinenziale di circa 3000 mq.
Al piano terra di circa 200 mq, avente altezza di 3 mt, troviamo 5 ampi locali;
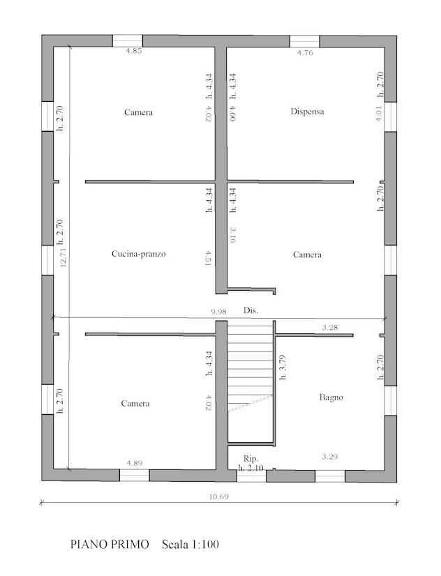
Al piano prima di circa 140 mq, avente altezza compresa tra 4,3 e 2,7 mt, troviamo 5 grandi camere e un ampio bagno.
Classe Energetica G

