**Appartamento in Vendita a Pesaro (PU) - A pochi passi dal mare!**
Scopri il tuo angolo di paradiso a soli 50 metri dalla splendida spiaggia di Pesaro! Questo affascinante appartamento di circa 53 mq è l'ideale per chi cerca una soluzione comoda e luminosa. L'open space accogliente, che unisce soggiorno, pranzo e angolo cottura, è perfetto per vivere momenti indimenticabili. Le doppie porte finestra offrono accesso a una struttura esterna leggera con vetrate trasparenti amovibili (VePA) che si apre poi su uno scoperto, ideale per godere del sole e della brezza marina.
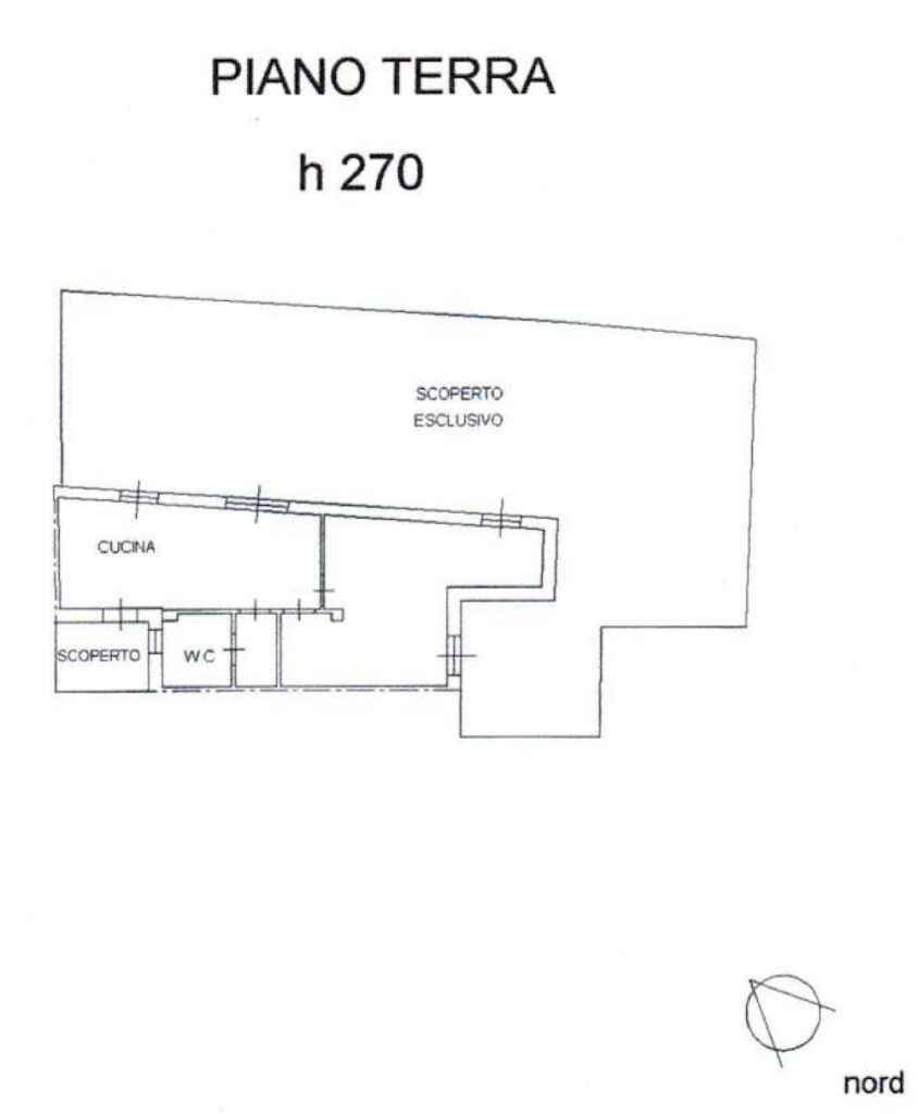
L'appartamento dispone di un esclusivo scoperto pavimentato di circa 115 mq, dove puoi creare il tuo giardino personale o semplicemente rilassarti all'aperto. La zona notte include una camera matrimoniale con doppio accesso allo scoperto, garantendo privacy e comfort. Il bagno è dotato di un moderno box doccia, mentre i materiali di alta qualità utilizzati nella costruzione del 2006 assicurano un ambiente elegante e funzionale.
Con riscaldamento autonomo, aria condizionata inclusa e spese condominiali contenute di soli 35 euro mensili, questo appartamento è perfetto sia come residenza principale che come investimento. Non perdere l'opportunità di vivere a pochi passi dal mare in un contesto tranquillo e ben servito.
Contattaci per maggiori informazioni e per organizzare una visita!
Pesaro Mare | Residenziale | Appartamenti indipendenti | Vendita | 318.000€

